ecoheat Vitrea - Montaggio e installazione
1. Sicurezza |
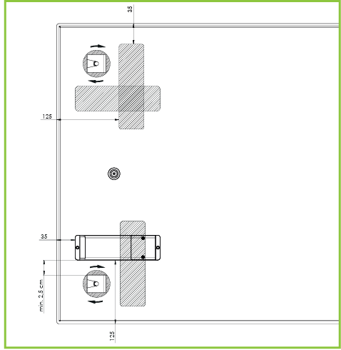
| 1.2 Istruzioni di sicurezza per l'installazione a soffitto e istruzioni per il fissaggio dei portabicchieri |  | L'installazione a soffitto di riscaldatori in vetro senza l'uso di supporti in vetro è severamente vietata! Il produttore non si assume alcuna responsabilità per la sicurezza in caso di utilizzo improprio o non previsto. | Accessori | Set di supporti per riscaldatori angolari in vetro composto da 2x supporti per vetro bianco e 2x viti di foratura. | Montaggio del portabicchieri sul riscaldamento del vetro rettangolare | - Fissare il portabicchieri uno di fronte all'altro.
- Avvitare il portavetro direttamente alla parete posteriore con le viti autofilettanti.
In alternativa, è possibile anche preforare (foro ø max. 2,8 mm). 
Le posizioni consigliate sono le combinazioni A-A o B-B. In alternativa, è possibile montare entrambe le combinazioni.

|
|
2. Informazioni sul prodotto |
| 2.2 Descrizione del prodotto | Il prodotto è un riscaldatore a infrarossi che emette calore sugli oggetti utilizzando le onde infrarosse. Gli oggetti caldi emettono a loro volta calore nell'ambiente circostante.
Il prodotto deve essere utilizzato in combinazione con il termostato radio ecoheat Sensus.
Il prodotto è adatto sia per il montaggio a parete che a soffitto. La temperatura massima della superficie a una temperatura ambiente di 20 °C è di 110 °C (120 °C per l'installazione a soffitto).
Struttura del prodotto | 
È possibile vedere il retro di un riscaldatore in formato 120 x 60 cm.
Legenda:
1 Riscaldatore a infrarossi 2 Staffa a muro (staffa a V) 3 Ricevitore radio 4 Spina di rete | Etichettatura CE
 | La marcatura CE documenta che i prodotti soddisfano i requisiti di base delle direttive pertinenti in base alla targhetta. |
|
3. Montaggio |
| 3.1 Verifica dell'entità della fornitura | Verificare che la fornitura sia completa e non danneggiata.
Quantità | Descrizione | 1 pezzo | Riscaldatore a infrarossi con ricevitore preassemblato, cavo di collegamento e staffe da parete (staffe a V). | 1 pezzo | Dima di montaggio. | 1 pezzo | Set di fissaggio standard. | 1 pezzo | Di istruzioni per l'installazione e l'uso. |
|
| 3.2 Dimensioni | 
 |
| 3.3 Sito di installazione | - Non installare il prodotto direttamente sotto una presa di corrente.
- Non installare il prodotto in ambienti con eccessiva umidità.
- Non installare il prodotto all'esterno di locali chiusi o in ambienti esposti all'acqua o all'umidità, ad esempio piscine.
- Non installare il prodotto o la presa di collegamento con i cavi nelle zone di protezione 1 e 2 dei locali umidi.
- Assicurarsi che la temperatura ambiente sia di almeno 17 °C e mantenere puliti i pavimenti e i radiatori per evitare depositi di polvere nera (effetto nebbia).
|
| 3.4 Mindestabstände | 
- Non scendere al di sotto della distanza minima (C) tra la parete posteriore e il soffitto/parete, specificata dalle staffe di montaggio (staffe a V).
- Assicurarsi che sia possibile una circolazione d'aria continua tra la parete posteriore e il soffitto/parete.
- In generale, mantenere una distanza minima di 60 cm in tutte le direzioni dalle aree con classi IP 65/67.

|
| 3.5 Posizionamento del ricevitore | Il ricevitore può essere posizionato solo sul bordo dell'impianto di riscaldamento o fissato al soffitto. | ATTENZIONE: NON COLLOCARE AL CENTRO DEL PANNELLO POSTERIORE DEL RISCALDATORE! RISCHIO DI SURRISCALDAMENTO! |

 - Rimuovere la pellicola protettiva dal nastro adesivo sul retro del ricevitore radio.
- Fissare il radioricevitore sul retro del riscaldatore a infrarossi in una delle quattro posizioni indicate.
- Assicurarsi che il lato in cui si trova l'elemento di comando sia rivolto verso l'esterno, in modo che il radioricevitore possa essere azionato dopo l'installazione del riscaldatore.
- Assicurarsi che vi sia una distanza di almeno 2,5 cm dalle staffe a V, in modo da poterle ruotare durante l'installazione del riscaldatore.
- Premere sul ricevitore radio e assicurarsi che sia completamente aderente al retro.
|
| 3.6 Installazione del riscaldatore | Strumento consigliato |  A Trapano elettrico a percussione o avvitatore a batteria B Taglierino o coltello per tappeti C Matita o biro D Martello E Chiave con larghezza di 8 mm su tutta la superficie (ganascia o anello) F Chiave con larghezza di 10 mm su tutta la superficie (ganascia o anello) G Punta da trapano da 8 mm adatta al materiale della parete o del soffitto | Dima di montaggio | - Utilizzare la dima di montaggio allegata per determinare la posizione dei fori per il montaggio del prodotto a parete o a soffitto. Assicurarsi di rispettare i requisiti relativi al luogo di installazione e le distanze minime richieste (vedere punto 3.4).
- Per il montaggio a parete, si consiglia di utilizzare una livella a bolla d'aria per garantire una posizione di montaggio verticale.
| Montaggio
 | 1. praticare innanzitutto i fori necessari nelle posizioni precedentemente segnate, utilizzando una punta da 8 mm adatta al materiale della parete o del soffitto.
Per i riscaldatori di lunghezza massima di 120 cm, praticare 4 fori. Per riscaldatori di lunghezza superiore a 150 cm, praticare 6 fori.
Il numero di fori è specificato anche nella dima di foratura fornita. Assicurarsi che i fori siano posizionati correttamente per un'installazione ottimale delle staffe a muro (staffe a V) da avvitare successivamente.
|  | Utilizzare i tasselli in dotazione (se adatti al materiale della parete o del soffitto), le viti a testa cilindrica e le rondelle del “set di fissaggio standard” fornito con il riscaldatore - come mostrato a sinistra.
2. inserire i tasselli nei fori (se necessario con un martello) e avvitare le viti con le rondelle con una chiave da 10 mm. Non serrare completamente le viti. Lasciare uno spazio di 4 mm tra la rondella e la parete o il soffitto.
3. Verificare che tutte le staffe a parete (staffe a V) del riscaldatore siano rivolte in un'unica direzione rispetto all'apertura. In caso contrario, allineare le staffe a V uniformemente in una direzione. Quale sia la direzione è irrilevante. |
|
 |
|
|
| 5. far scorrere il riscaldatore lateralmente finché le viti non sono completamente inserite nelle staffe a V. Prestare attenzione alle rondelle.
6. bloccare il riscaldatore ruotando le staffe a V di 180º: |  |
| Montaggio a parete:
Girare qualsiasi “supporto a V” | Montaggio a soffitto:
Girare due staffe a “V” qualsiasi |
| 7. serrare tutte le 8 o 12 viti utilizzando le chiavi da 8 e 10 mm. Verificare che il riscaldatore sia ben saldo. |
|
Ulteriori informazioni:
Avete ancora domande a cui non è stata data risposta? Non c'è problema! Saremo lieti di aiutarvi: contattate ecofort.