ecoheat Aura Montage und Installation
| 2. Produktinformationen |
| 2.2 Produktbeschreibung | Das Produkt ist eine Infrarotheizung, die durch Infrarotwellen Wärme an Gegenstände abgibt. Die warmen Gegenstände geben dann wiederum Wärme an die Umgebung ab.
Das Produkt sollte in Kombination mit dem Funkthermostat ecoheat Sensus verwendet werden. Das Produkt ist gleichsam für die Wand- und Deckenmontage geeignet. Die maximale Oberflächentemperatur bei einer Umgebungstemperatur von 20 °C beträgt: 110 °C (115°C bei Deckenmontage).
| Produktaufbau | 
Zu sehen ist die Rückseite einer Heizung im Format 120 x 60 cm.
Legende:
- Infrarotheizung
- Wandhalter (V-Halter)
- Funkempfänger
- Netzstecker
| CE-Kennzeichnung
 | Mit der CE-Kennzeichnung wird dokumentiert, dass die Produkte gemäss dem Typenschild die grundlegenden Anforderungen der einschlägigen Richtlinien erfüllen. |
|
| 3. Montage |
| 3.1 Lieferumfang prüfen | Prüfen Sie den Lieferumfang auf Vollständigkeit und Unversehrtheit.
| Anzahl | Bezeichnung | | 1 Stück | Infrarotheizung mit vormontiertem Empfänger, Anschlusskabel und Wandhaltern (V-Halter). | | 1 Stück | Montageschablone. | | 1 Stück | Standard-Befestigungs-Set. | | 1 Stück | Installations- und Betriebsanleitung. |
|
| 3.2 Abmessungen | 
 |
| 3.3 Aufstellort | - Installieren Sie das Produkt nicht unmittelbar unterhalb einer Wandsteckdose.
- Installieren Sie das Produkt nicht in Räumen mit übermässiger Feuchtigkeit.
- Installieren Sie das Produkt nicht ausserhalb geschlossener Räume oder in Räumen, wo es Wasser bzw. Nässe ausgesetzt ist, z.B. Schwimmbad.
- Installieren Sie das Produkt sowie deren Anschlusssteckdose mit Leitungen nicht in den Schutzzonenbereich 0, 1 und 2 von Nassräumen.
- Beachten Sie, dass die Raumtemperatur min. 17 °C betragen sollte, und halten Sie Fussböden und Heizkörper sauber, um Schwarzstaubniederschläge (Fogging Effekt) zu vermeiden.
|
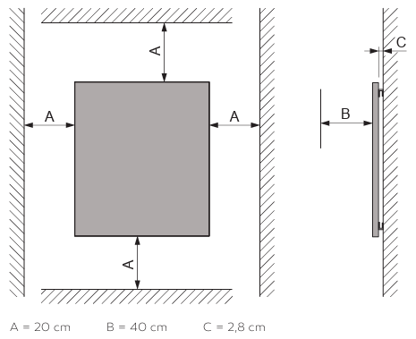
| 3.4 Mindestabstände | 
- Unterschreiten Sie nicht den Mindestabstand (C) zwischen Rückwand und Decke/Wand, der durch die Befestigungswinkel (V-Halter) vorgegeben ist.
- Stellen Sie sicher, dass zwischen Rückwand und Decke/Wand eine kontinuierliche Luftzirkulation möglich ist.
- Halten Sie generell zu Bereichen der IP-Klassen 44/65/67 einen Mindestabstand von 60 cm in alle Richtungen.
 |
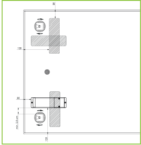
| 3.5 Positionierung des Empfängers | Die Positionierung des Empfänger darf ausschliesslich im Randbereich der Heizung bzw. durch eine Befestigung an der Raumdecke erfolgen.
 | ACHTUNG: NICHT MITTIG AUF DIE RÜCKWAND DES HEIZKÖRPERS ABLEGEN! ÜBERHITZUNGSGEFAHR! |
|
| 

- Entfernen Sie die Schutzfolie des Klebebandes auf der Rückseite des Funkempfängers.
- Befestigen Sie den Funkempfänger auf der Rückseite der Infrarotheizung in einer der vier dargestellten Positionen.
- Achten Sie darauf, dass die Seite, an der sich das Bedienelement befindet, nach aussen gerichtet ist, um den Funkempfänger nach der Heizungsmontage bedienen zu können.- Achten Sie darauf, mindestens 2,5 cm Abstand zu den V-Haltern einzuhalten, um diese bei der Montage der Heizung drehen zu können.
- Drücken Sie den Funkempfänger an und vergewissern Sie sich, dass dieser vollflächig auf der Rückseite haftet.
|
| 3.6 Heizung montieren | | Empfohlenes Werkzeug |  A Akkuschrauber oder elektrische Bohrmaschine. B Cutter-Messer oder Teppich-Messer. C Bleistift oder Kugelschreiber. D Hammer. E Schraubenschlüssel mit 8 mm Schlüsselweite (Maul oder Ring). F Schraubenschlüssel mit 10 mm Schlüsselweite (Maul oder Ring). G Bohrer mit 8 mm passend zum Material Ihrer Wand bzw. Decke. | | Montageschablone | Benutzen Sie die beiliegende Montageschablone, um die Lage der Bohrlöcher für die Montage des Produkts an der Wand bzw. Decke zu ermitteln. Beachten Sie unbedingt die Anforderungen an den Aufstellort und die erforderlichen Mindestabstände (siehe Punkt 3.4). Bei einer Montage an der Wand empfehlen wir die Verwendung einer Wasserwaage für eine lotrechte Montageposition.
| Montage
 | 1 Bohren Sie als erstes die erforderlichen Löcher mit einem für den Werkstoff ihrer Wand bzw. Decke geeigneten 8 mm Bohrer an den zuvor markierten Positionen.
Für Heizungen bis max. 119,2 cm Länge bohren Sie 4 Löcher. Für Heizungen ab 120,0 cm Länge bohren Sie 6 Löcher.
Die Anzahl der Löcher gibt Ihnen zudem die mitgelieferte Bohrschablone vor. Bitte achten Sie auf eine korrekte Positionierung der Bohrlöcher für eine optimale Montage der später daran zu verschraubenden Wandhalter (V-Halter). |  | Verwenden Sie (sofern für den Werkstoff ihrer Wand bzw. Decke geeignet) die mitgelieferten Dübel, die Schlüsselschrauben und die Unterlegscheiben aus dem der Heizung mitgelieferten „Standard-Befestigungs-Set“ - wie linksstehend abgebildet.
2 Stecken Sie die Dübel in die Löcher (ggf. mit dem Hammer einschlagen) und schrauben Sie die Schrauben mit den Unterlegscheiben mit Hilfe eines 10 mm Schraubenschlüssels ein. Ziehen Sie die Schrauben nicht komplett an. Lassen Sie zwischen Unterlegscheibe und Wand bzw. Decke 4 mm Platz.
3 Kontrollieren Sie ob alle Wandhalter (V-Halter) Ihrer Heizung mit der Öffnung in eine Richtung zeigen. Falls nicht, richten Sie die V-Halter einheitlich in eine Richtung aus. In welche Richtung ist unerheblich.

Bei einer Deckenbefestigung lassen Sie sich beim nächsten Montageschritt von einer zweiten Person helfen. Stellen Sie (falls benötigt) eine Leiter bereit.
4 Heben Sie die Heizung an die Montageposition, so dass die Öffnungen der V-Halter unmittelbar vor den bereits auf Abstand eingedrehten Schrauben liegen. |
 |
| 5 Schieben Sie die Heizung seitlich bis die Schrauben vollständig in die V-Halter eingefahren sind. Achten Sie auf die Unterlegscheiben.
6 Sperren Sie die Heizung durch eine 180º-Drehung der V-Halter: |
 |
| Wandmontage: Einen beliebigen „V-Halter“ drehen. | Deckenmontage: Zwei beliebige „V-Halter“ drehen. |
| 7 Ziehen Sie alle 8 bzw. 12 Schrauben mit den beiden Schraubenschlüsseln 8 und 10 mm fest. Überprüfen Sie den festen Sitz der Heizung. |
|
Weiterführende Informationen:
Haben Sie noch Fragen welche noch nicht aufgeklärt wurden? Kein Problem! Gerne helfen wir Ihnen weiter: ecofort kontaktieren.